リフォーム施工例

CASE.21〜友人を招いてホームパーティも楽しめる広々開放的なLDKへ

札幌市厚別区 マンション内部改修

 

新築時より30年の時が経ち、変化したライフスタイルに合わせてお住まいをリノベーション。見せるところ、隠すところ、メリハリをつけて"生活感をいかに収納し、心地よく過ごせるか"そんなテーマに応えたリフォームとなりました。
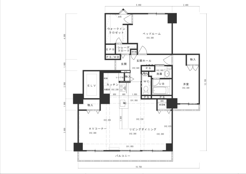
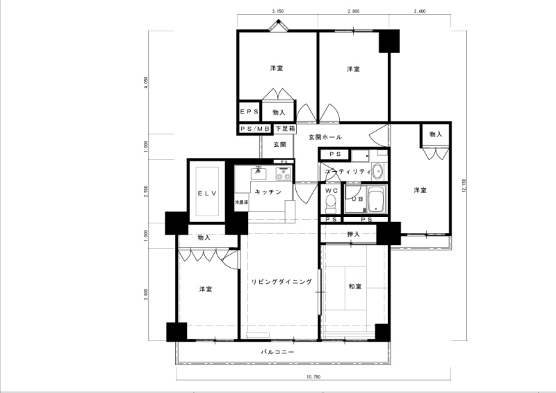
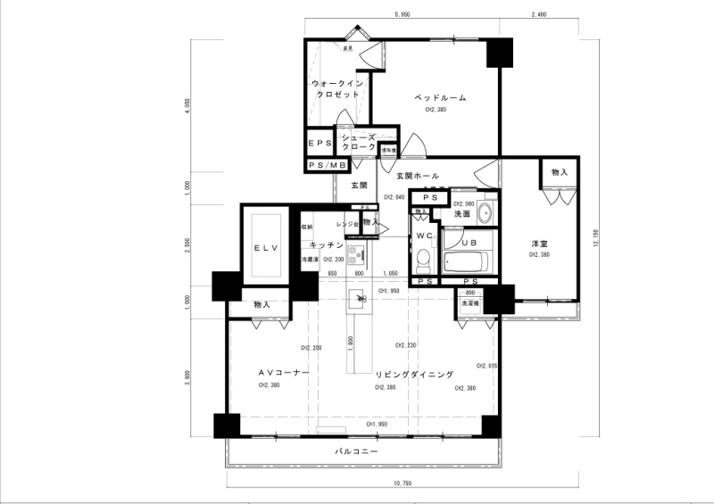
プラン
キッチンの向きを90度変更し、フルオープンに。
調理をしながら、食事をしながら 会話が弾む、キッチンが中心のプランニングに。
※ 以下の図面はクリックすると拡大表示します。
 
 
 
LDK①
ダークブラウンとグレーでまとめたモダンなインテリアに赤い椅子がアクセント。
 
 
 
LDK②
とっておきのワインを楽しみながら、ゆったりした時間を過ごせます。
 
 
 
寝室
お部屋に合わせてヘッドボードを造作。間接照明の柔らかな光で 心地よい眠りへ誘います。
 
 
 

 

 
収納

ウォークイン:クロゼットとつながったシューズクロゼットや、充電しながら収納できる掃除機収納など今の暮しに合わせて収納を工夫しました。

 
 
水まわり

トイレは色違いのクロスも柄を合わせることで、統一感をだしました。

 
リフォーム関連会社リンク  株式会社サンゲツ  フジエテキスタイル  東リ株式会社